
Mein Teststand

Testaufbau mit Drehzahlmesser und Messgerät. Einfach ein Plastic Rohr über die Gewindestangen gestülpt und von Hand gedreht (klappt bis ca. 180U/min)
oder mit Hilfe dieses Gummi-Drehtellers über die Schrauben gestülpt.

Gehäuse für die Schalter

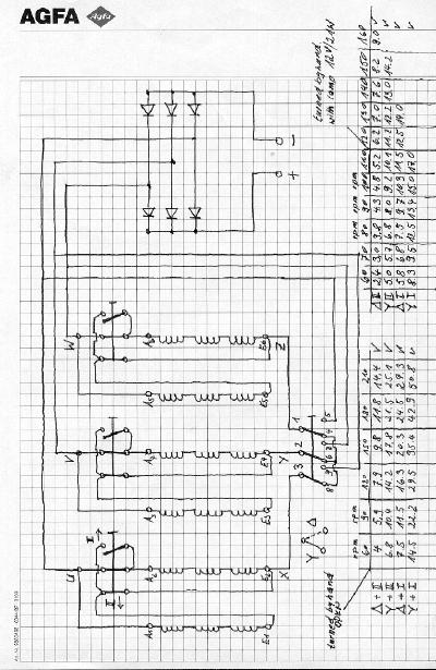
Ich habe alle Strangenden der Spulen rausgeführt, da ich zweifach (1,0qmm x 2 = 2,0qmm) gewickelt habe, bekomme ich pro Phase 2Stränge gleich 4 Enden, mal 3 ergibt 12 Enden. Oben erkennt man meine Autosicherungen für die einzelnen Stränge) Jetzt kann ich für Testzwecke (Um zu sehen was besser zu meinen Flügeln passt) die Stränge hintereinander schalten mittels einfacher teilweise umgebauter Drehschalter eines Elektroherdes. Eine Hintereinanderschaltung ergibt doppelte Windungszahl ergibt doppelte Spg. und doppelten Widerstand (auf 24V Bereich gewickelt), eine Parallelschaltung ergibt doppelten Querschnitt und nur die Hälfte der Windungen also auch der Spg,(auf 12V Bereich gewickelt)
Dann habe ich noch die Möglichkeit über Drehschalter zwischen Stern und Dreieckschaltung der Spulenstränge umzuschalten. Dies deckt alles zusammen einen ganzen Bereich an Möglichkeiten ab.

Sternschaltung parallel und seriell

Dreieckschaltung parallel und seriell

Schaltung und Meßergebnisse rechts unten: no load; rechts oben mit Birne 12V/21W


Die obigen Werte wurden von Hand gedreht; Ich hatte vier Schaltmöglichkeiten für meinen Testaufbau
1) Stern seriell ( I ) 2Stränge je Phase seriell geschaltet (für 24V Bereich)
2) Dreieck seriell ( I )2 Stränge je Phase seriell geschaltet (für 24V Bereich)
3) Stern parallel ( II ) 2 Stränge je Phase parallel geschaltet (für 12V Bereich)
4) Dreieck parallel ( II ) 2 Stränge je Phase parallel geschaltet (für 12V Bereich)
Über die Schalter konnte ich mir die Einstellung auswählen, die am Besten zu meinen Blättern passte, Stern (II ) oder Dreieck (I). Habe mich für Stern ( II ) entschieden, parallel habe ich den doppelten Spulenquerschnitt..
Stern ( I ) lief nur langsam an im Wind und kam einfach nicht auf Touren (Fehlanpassung)
Wenn du deine Spulen auf 24V gewickelt hast, hast du doppelte Windungs-
zahl als bei 12V und dementsprechend auch doppelten Widerstand.
Du erzeugst bei gleicher Drehzahl nehmen wir 60U/min an mit der 24V
Wicklung bereits 6V währen deine 12V Wicklung erst 3V erzeugt.
Der entscheidenden Unterschied fürs Anlaufen ist aber die Kraft die
benötigt wird diese Drehzahl über die Flügel zu erzeugen.
Das kann man wunderbar durch Andrehen von Hand feststellen, der
Anlauf von Hand ist bei 24V ungleich schwerer als bei 12V. Grund ist
die doppelte Magnetisierung der Spulen. (Voraussetzung für diesen Test ist ein Generator, dessen Spulen von 12V auf 24V umgeschaltet werden können.)
Man braucht also doppelte Kraft von den Flügeln um gleiche Drehzahl
bei einer 24V Anlage zu erreichen gegenüber einer 12V Anlage ( bei
gleicher Hardware)
(Die kommende Beschreibung ist vereinfacht entspricht aber dem Prinzip)
Ähnliches gilt für die Stern-Dreieckschaltung der Spulen. Sind die Spulen
im Stern geschaltet arbeiten immer zwei Stränge hintereinander, bedeutet
hoher Widerstand, schwereres Anlaufen, aber Erreichen einer 12V Spg.
schon bei niederen Drehzahlen.
Sind die Spulen im Dreieck geschaltet wird pro Phase nur ein Strang
benutzt, niedriger Widerstand, leichteres Anlaufen aber Erreichen der 12V
erst bei nicht ganz doppelter Drehzahl.
Hat man ein Rad mit kleinen Blättern und bleibt dieses Rad beim Anlaufen
stehen, kann man durch eine Dreiecksschaltung einen leichteren Anlauf
erreichen, braucht aber schnelllaufende Blätter, da der 12V Bereich erst
bei hoher Drehzahl erreicht wird.